Waternet 是荷兰自来水公司,负责民生供水、下水道及水资源管理。
Waternet的试验工厂是公司营运中一个重要的部分。这里是进行各种试验持续改善饮用水质的地方。通常这些系统是临时性的,并且构建成本相对较低。因此,Teesing建议使用PVDF接头。
PVDF的好处是:比不锈钢便宜、容易更换而且可重复使用。这个特别的试验工厂使用的Ozone系统因为运作十分良好,所以现在已经转为长期设备使用。
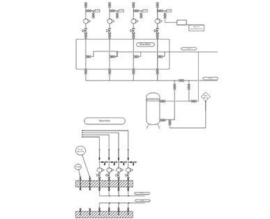
它是如何运作的?
从管汇开始,管道连接到反应柱上。然后水在柱列中进行最后的反应作用。由于臭氧优异的消毒及氧化特性,所以能广泛使用在饮用水的处理上。


臭氧在整个水处理系统中可用于多个地方,例如在前置氧化、中间产物氧化或最终消毒。我们建议将臭氧用于沙子或活性炭过滤器(氧化)。这些过滤器可在使用臭氧之后或是生物性衰减处理时移除残余的有机化合物,这对最终消毒环节起到十分重要的作用。
优点
此组合的主要优点如下所列:

不论您需要任何建议、寻求任何解答,请把问题反馈给我们,和我们随时保持联络!
销售工程师
電話: 010-56865822 / 56865835
电子邮件: info@teesing.com.cn

WE ENGINEER FROM SOURCE TO PROCESS
北京市通州区中关村科技园区通州园 金桥科技产业基地环科中路2号院30号楼101 邮编: 101102
info@teesing.com.cn
+86 (10) 56865822 / 56865835
金桥科技产业基地环科中路2号院30号楼101
101102 北京
中国
+86 (10) 56865822
info@teesing.com.cn